Page suivante
Page précédente
Nîmes (30000)

Appartement 3 pièce(s) 2 chambre(s) 114.52 m²

1
1 100 € CC*
Réf 256

Boulevard Amiral Courbet - Esplanade

Situé à deux pas de l'esplanade et de l'Université des Carmes, au sein d'un immeuble ancien sécurisé en 2ème étage sans ascenceur, notre agence vous propose à la location ce spatieux appartement de type T3 de 114,52m².

Joliement meublé et rénové, ce bien bénéficie du charme de l'ancien (hauteur sous plafond, moulures, parquet, cheminée décorative, baignoire pied de lion..), mais aussi de tout le confort moderne dont la climatisation reversible.

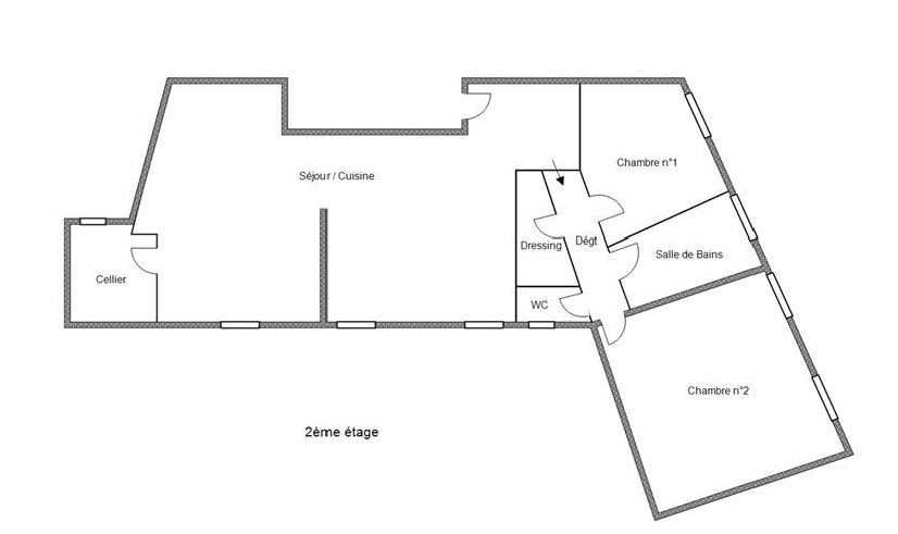
L'appartement se compose : d'une entrée ouverte sur un séjour très lumineux et chaleureux avec cheminée décorative, d'une cuisine semi-ouverte aménagée et équipée (plaque de cuisson, hotte, four) offrant ainsi une grande pièce de vie de 57.28 m², côté pratique un celier/buanderie, une salle d'eau avec double vasque, douche et baignoire, un WC séparé.

Coté nuit le logement dispose de 2 chambres de 11, 37m² pour la première et une grande chambre parentale de 25.19m² avec un grand placard.

Double vitrage - Chauffage au gaz individuel - Climatisation réversible.

Stationnement à toute proximité avec le parking soutérain de l'esplanade.

Loyer 1100 € dont 90 € de provisions pour charges ( eau froide, TEOM, charges communs) - Dépot de garantie 1800 € - Honoraires de location 900 € dont 320€ d'état des lieux.

Disponible début Juin.

Annonce complète à découvrir sur https://www.acoteimmo.com

Les informations sur les risques auxquels ce bien est soumis sont disponibles sur le site www.georisques.gouv.fr


Les informations sur les risques auxquels ce bien est exposé sont disponibles sur le site Géorisques

Bilan énergétique

Diagnostics énergetiques
A propos de ce bien Caractéristiques de ce bien
  • Surface 114,52 m²
  • carrez 114,52 m²
  • séjour 57 m²
  • 2 chambre(s)
  • 1 salle(s) de bain
  • construit en 1900
  • cuisine américaine (équipée)
  • Chauffage individuel : autre (climatisation)
  • 1 niveau(x)
  • 2ème étage
  • 3 étage(s)
  • interphone
  • quartier AMIRAL COURBET, FEUCHERES

Composition

Composition de ce bien

Rez-de-chaussée

  • salon/sejour 57.28 m²
  • chambre 11.37 m²
  • chambre 25.19 m²
  • salle de bain 6.94 m²

Info copro

Copropriété
  • Copropriété Oui

Financier

Informations financières
Loyer CC* / mois 1 100 €
Honoraires TTC charge locataire 900 €
Dont état des lieux 320 €
Dépôt de garantie TTC 1 800 €
Charges locatives (Previsionnelles mensuelles les avec regularisation annuelle) 90 €

Autour du bien

Découvrez le quartier
Julie INIESTA Négociatrice

* CC : Charges comprises