Page suivante
Page précédente
Nîmes (30900)

Immeuble 160 m² 1 etage(s)

1
470 000 €
Réf 2708

Patrimonial !!! Jean-Jaurès - votre agence A Coté Immobilier vous propose à l'achat ce bel immeuble en très bon état situé à quelque mètres de l'avenue Jean-Jaurès et à 5 mn à pieds des Jardins de la Fontaine.

Le batiment, construction année 1940; style maison de ville, est composé:

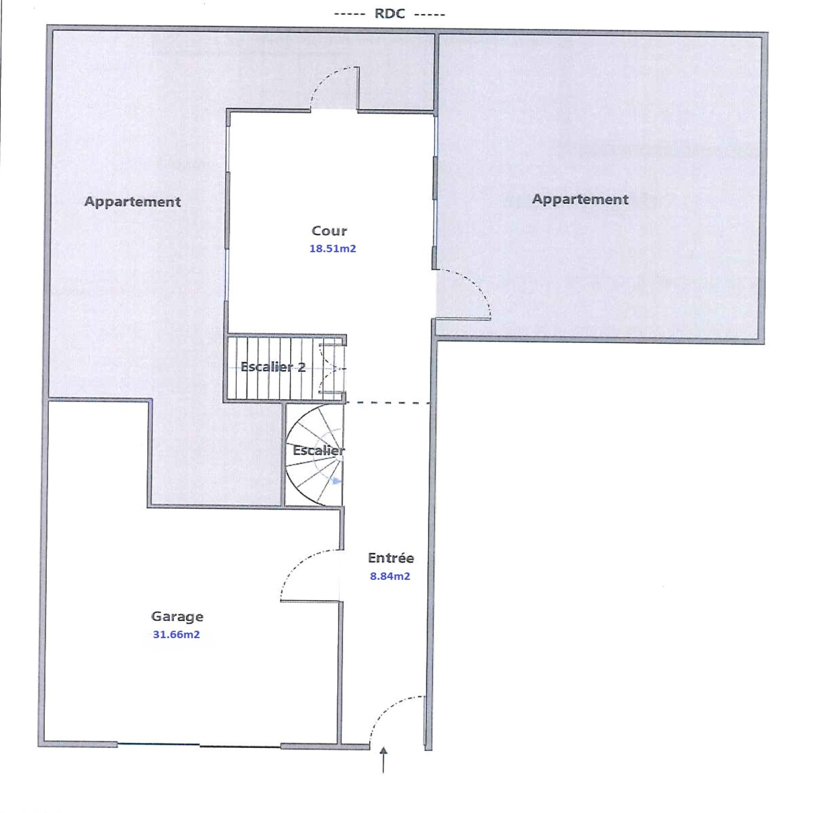
Au RDC:

- 1 Appartement Type 2, surface 38.44m2 + cave en sous-sol - Loué 518.52 €

- 1 Appartement Type 2, surface 45.87m2 + cave en sous-sol - Loué 549.10 €

- 1 Garage: surface 31.16m2, loué 90 €

A l'étage:

- Un appartement Type 3 surface 74.84m2; avec extèrieur - Loué 779.32 €

Menuiseries double vitrage - chauffage central gaz.

Locataires sèrieux à jour de leur loyer.

La taxe foncière est de 2893 € dont 455 € de TOM récupérable auprès des locataires.

Emplacement, emplacement, emplacement...N'hésitez pas à venir découvrir ce bel immeuble idéalement situé...!!!

Bilan énergétique

Diagnostics énergetiques
A propos de ce bien Caractéristiques de ce bien
  • Surface 160 m²
  • carrez 160 m²
  • Chauffage central : radiateur (gaz)
  • 1 garage(s)
  • exposition Sud
  • 2 niveau(x)
  • 1 étage(s)
  • cave
  • terrasse
  • quartier Fontaine

Composition

Composition de ce bien

Rez-de-chaussée

  • Appartement RDC droite 45.87 m²
  • Appartement RDC gauche 38.44 m²
  • Appartement T3 étage 74.84 m²
  • garage 31.66 m²

Financier

Informations financières
Prix de vente honoraires TTC inclus 470 000 €
Taxe foncière annuelle 2 893 €

Autour du bien

Découvrez le quartier

Simulation

Calcul des mensualités
* Champs obligatoires
Frédéric FLOUTIER Négociateur