Page suivante
Page précédente
Nîmes (30000)

Maison 4 pièce(s) 3 chambre(s) 86.23 m²

1
193 m²
1
Réf 2681

Exclusivité !!! Bénéficiant du calme d'une impasse sur le secteur Beausoleil, a seulement quelque pas du lycée d'Alzon, proche centre-ville et de la Gare. Votre agence A Coté Immobilier a le privilège de vous proposer à l'achat cette agréable maison de ville en R+1 mitoyenne par le garage construite année 1980 sur une parcelle de terrain de 193m2.

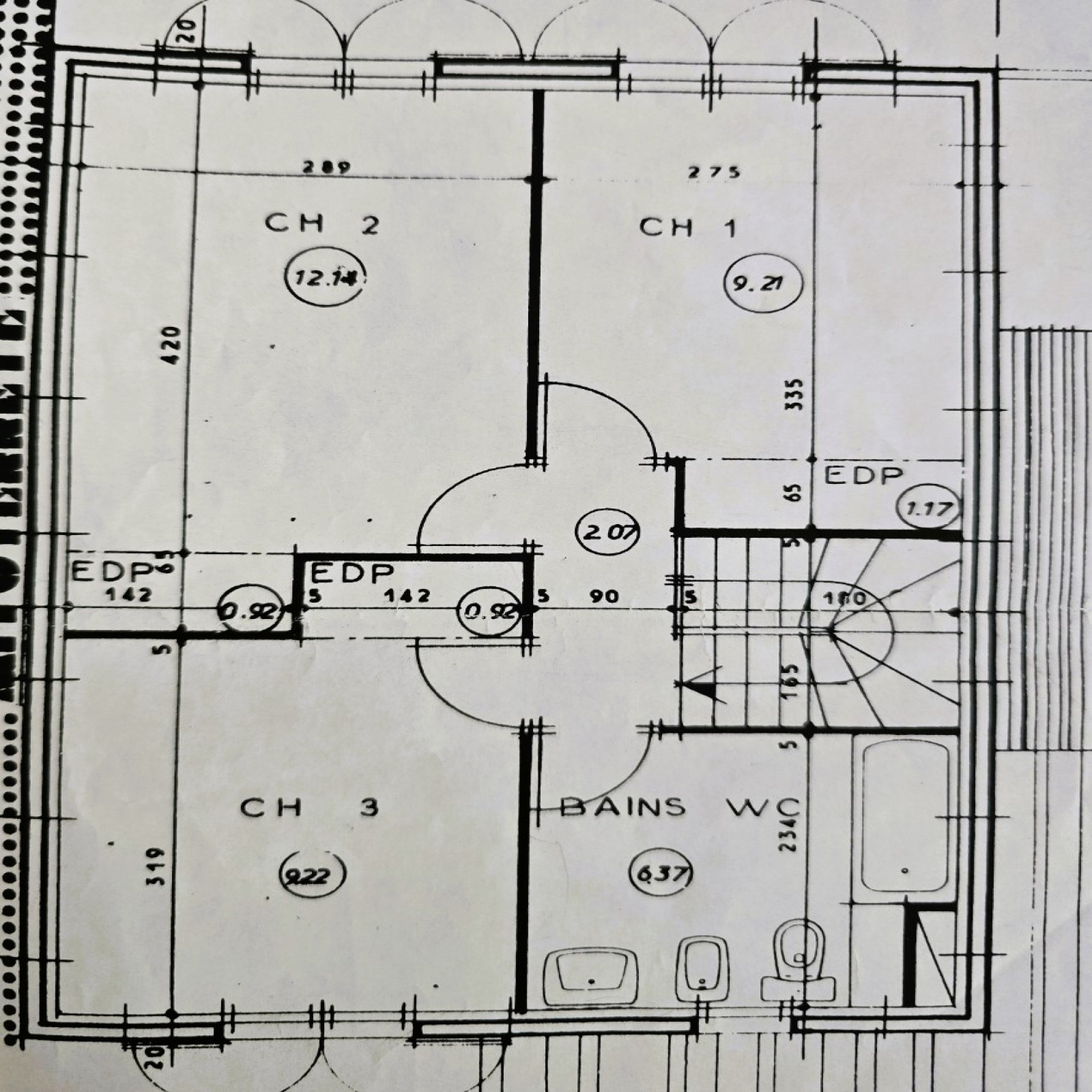
La maison exposée Sud/Nord est composée au RDC: D'une cuisine aménagée équipée, d'un salon/séjour, d'un WC/buanderie, et d'un grand garage de 21m2 avec une mezzanine.

A l'étage: 3 chambres et une salle de bains.

Les menuiseries sont en double vitrage, le chauffage est électrique par radiateur au RDC, l'étage bénéficie d'un agréable climatisation réversible.

Maison très saine construite sur vide sanitaire.

Un forage vous permettra d'arroser vos 2 extèrieurs et vos fleurs à votre guise.

Taxe foncière: 1807 Euros.

Par les plans ainsi que la visite guidée joints avec la diffusion de l'annonce vous pourrez vous projeter dans cette agréable maison de ville idéalement situé dans un quartier résidenciel, n'hésitez pas à venir la découvrir...

Bilan énergétique

Diagnostics énergetiques
A propos de ce bien Caractéristiques de ce bien
  • Surface 86,23 m²
  • carrez 86,23 m²
  • terrain 193 m²
  • séjour 23 m²
  • 3 chambre(s)
  • 1 salle(s) de bain
  • construit en 1980
  • cuisine séparée (équipée)
  • 1 garage(s)
  • exposition Nord-Sud
  • 2 niveau(x)
  • vue Jardin
  • terrasse
  • quartier Beausoleil

Composition

Composition de ce bien

Rez-de-chaussée

  • salon/sejour 22.76 m²
  • cuisine 9.58 m²
  • chambre 9.21 m²

Etage 1

  • chambre 9.21 m²
  • chambre 12.14 m²
  • chambre 9.22 m²
  • salle de bain 6.37 m²

Financier

Informations financières
Prix net vendeur 270 000 €
Taxe foncière annuelle 1 807 €

Autour du bien

Découvrez le quartier

Simulation

Calcul des mensualités
* Champs obligatoires
Frédéric FLOUTIER Négociateur