Page suivante
Page précédente
Nîmes (30000)

Maison 4 pièce(s) 3 chambre(s) 87 m²

1
562 m²
1
Réf 2638

RARE !!! Secteur BEAUSOLEIL, profitant du calme d'une impasse, proche lycée d'Alzon et à seulement quelques minutes à pieds du centre ville, belle maison de ville individuelle construite dans les années 1950 sur sur une parcelle de terrain de 562m2.

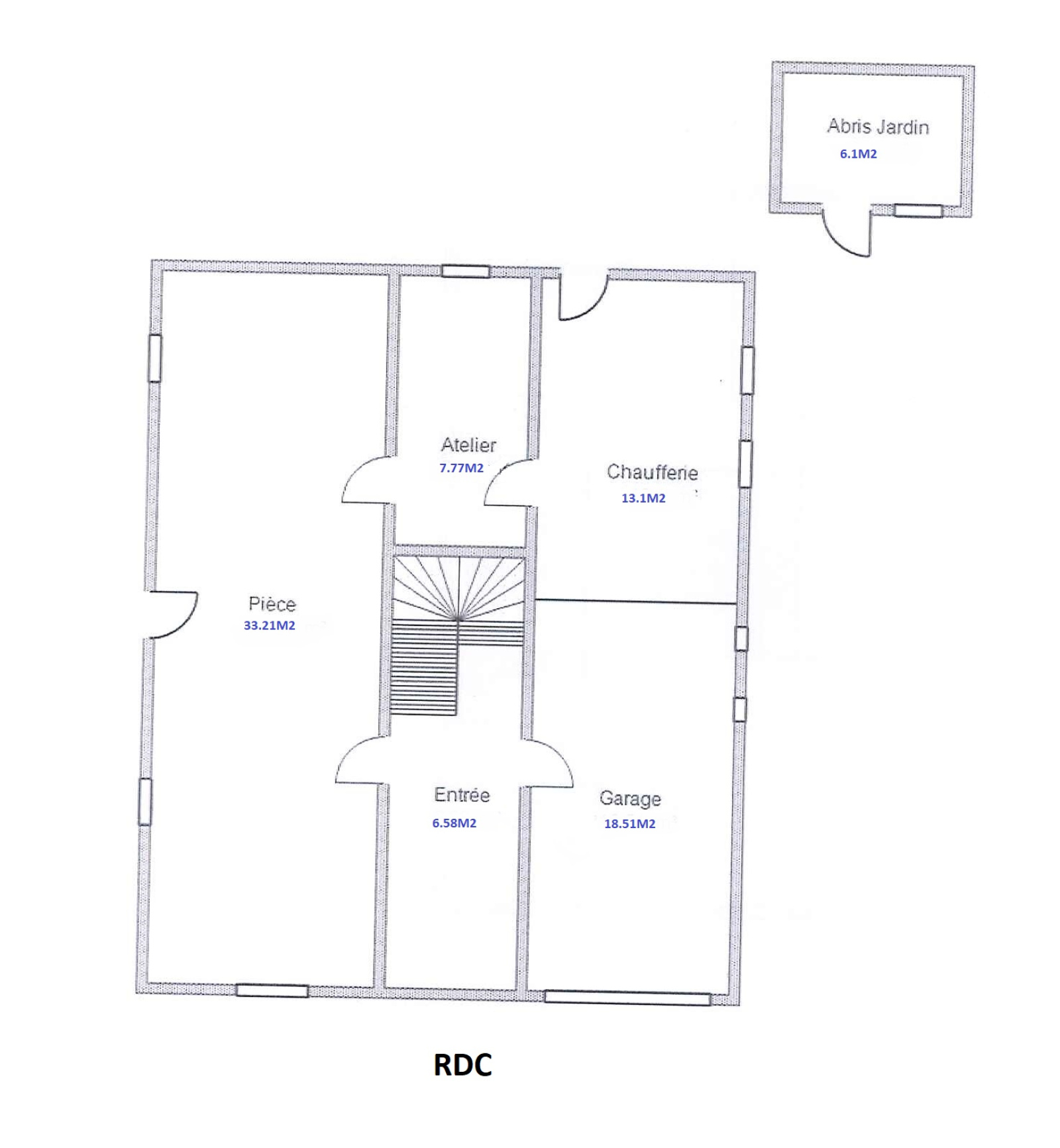
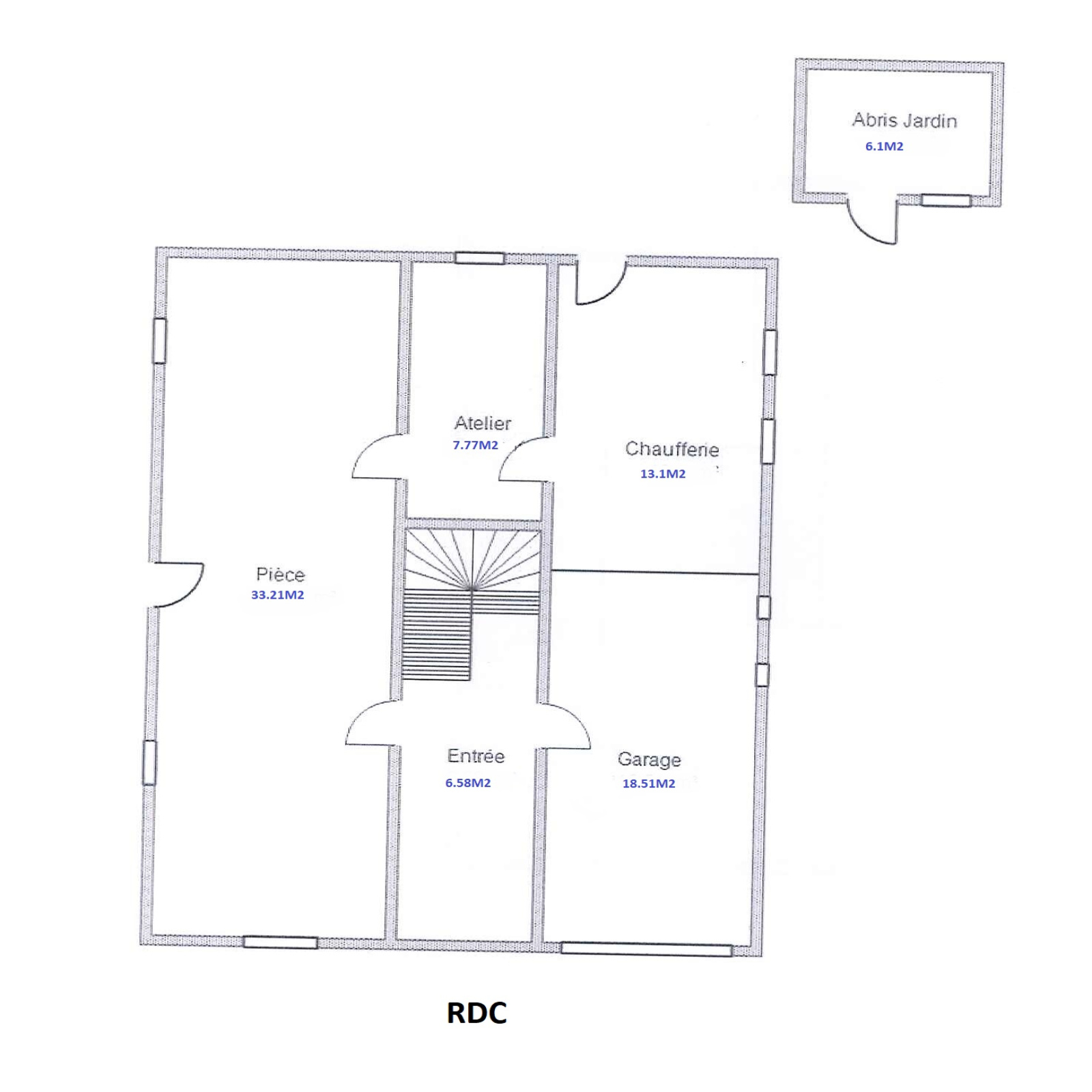
La maison d-une surface utilisable de 167m2 est composée: au RDC: D'une entrée, d'une grande pièce aménageable de 33m2, d'un garage et d'un atelier. Hauteur sous plafond 2.2m.

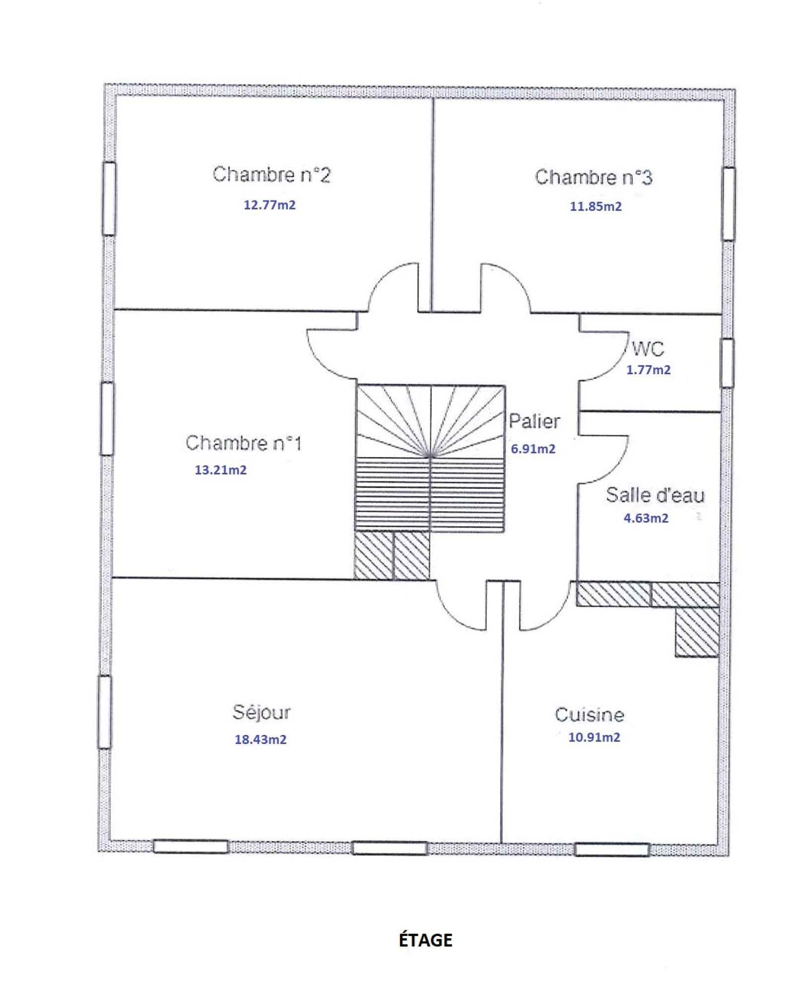
A l'étage, accessible par l'intèrieur, la partie habitable de 87m2 est composée: D'une pièce de vie, d'une cuisine indépendante pouvant être ouverte sur la pièce de vie, de 3 belles chambres, d'une salle d'eau et d'un WC indépendant.

La maison bénéficie d'une climatisation réversible gainée et l'électricité a été révisée. Prévoir travaux de remise au gout du jour important.

Taxe Foncière: 1750 Euros.

Les plus de ce bien rare sur le marché Nimois: Maison individuelle proche centre ville - Beau terrain de 562m2 - Calme d'une impasse...

N'hésitez pas à venir le découvrir nous avons les clés....

Bilan énergétique

Diagnostics énergetiques
A propos de ce bien Caractéristiques de ce bien
  • Surface 87 m²
  • carrez 87 m²
  • terrain 562 m²
  • 3 chambre(s)
  • 1 salle(s) d'eau
  • construit en 1950
  • cuisine séparée
  • Chauffage individuel : air pulsé (climatisation)
  • 1 garage(s)
  • exposition Sud-Ouest
  • 2 niveau(x)
  • vue Jardin
  • arboré
  • piscinable
  • quartier Beausoleil

Composition

Composition de ce bien

Rez-de-chaussée

  • RDC 83 m²
  • 83 m²

Financier

Informations financières
Prix net vendeur 240 000 €
Taxe foncière annuelle 1 750 €

Autour du bien

Découvrez le quartier

Simulation

Calcul des mensualités
* Champs obligatoires
Frédéric FLOUTIER Négociateur