Page suivante
Page précédente
Nîmes (30000)

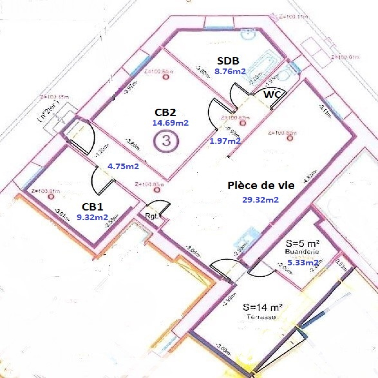
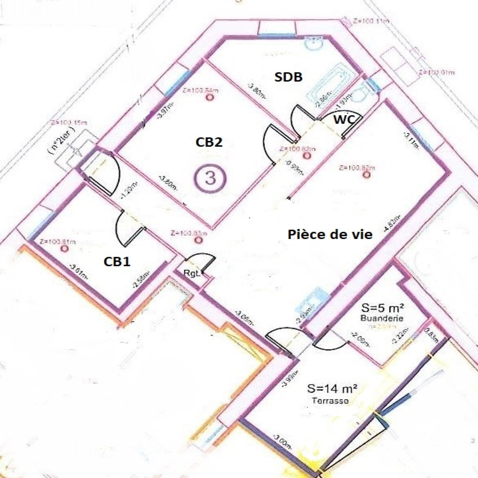
Appartement 3 pièce(s) 2 chambre(s) 70 m²

1
1
119 000 €
Réf 2700

Vendu loué !!! Appartement Type 3 d'une surface de 70m2 idéalement situé au RDC d'une petite copropriété en R+1, sur le quartier Beausoleil - Centre ville, a proximité de la Gare, proche du lycé Dalzon, et à 10 mn à pieds des Arènes L'appartement est composé d'une belle pièce de vie de 30m2 avec une cuisine ouverte ouverte, dont on accède à une agréable terrasse de 14m2 et a une buanderie extèrieure très pratique, de 2 chambres de 15 et 9.3m2, d'une grande salle de bains, et d'un WC indépendant.

Les menuiseries son en double vitrage avec volets roulants, climatisation réversible, radiateur électrique .

DPE: C - A

Une place de parking est aussi vendu avec l'appartement.

Faibles charges de copropriété d'environ 58 Euros par mois incluant l'eau. La taxe foncière est de 1630 Euros dont 266 Euros de TOM, remboursés chaque année par le locataire.

L'appartement qui dispose de son entrée complètement indépendante est vendu loué 661 Euros CC incluant 20 Euros de provisions sur charges. Bail du 01/12/2024.

Bilan énergétique

Diagnostics énergetiques
A propos de ce bien Caractéristiques de ce bien
  • Surface 70 m²
  • carrez 70 m²
  • séjour 30 m²
  • 2 chambre(s)
  • 1 salle(s) de bain
  • construit en 1950
  • Chauffage individuel : radiateur (electrique)
  • 1 parking(s)
  • exposition Nord-Sud
  • 1 niveau(x)
  • 1 étage(s)
  • terrasse
  • quartier Beausoleil

Info copro

Copropriété
  • Copropriété Oui
  • Lot n° 3 - 12
  • Nombre de lots 2
  • Quote part annuelle des charges 680 €

Financier

Informations financières
Prix de vente honoraires TTC inclus 119 000 €
Charges 58 €
Taxe foncière annuelle 1 630 €

Autour du bien

Découvrez le quartier

Simulation

Calcul des mensualités
* Champs obligatoires
Frédéric FLOUTIER Négociateur