Page suivante
Page précédente
Nîmes (30000)

Appartement 3 pièce(s) 2 chambre(s) 92 m²

1
Ascenseur
1
105 000 €
Réf 2695

Votre agence A Coté Immobilier a le privilège de vous proposer en exclusivité VIAGER OCCUPÉ, sur 2 têtes 76 et 84 ans, ce superbe appartement Type 3 de 92m2 avec un bel extérieur et un garage, situé au 3ième et dernier étage de la résidence ''Les Villégiales des Arènes'', rue de la Cité Foulc à Nimes, entre le musée des Beaux Arts et les Arènes.

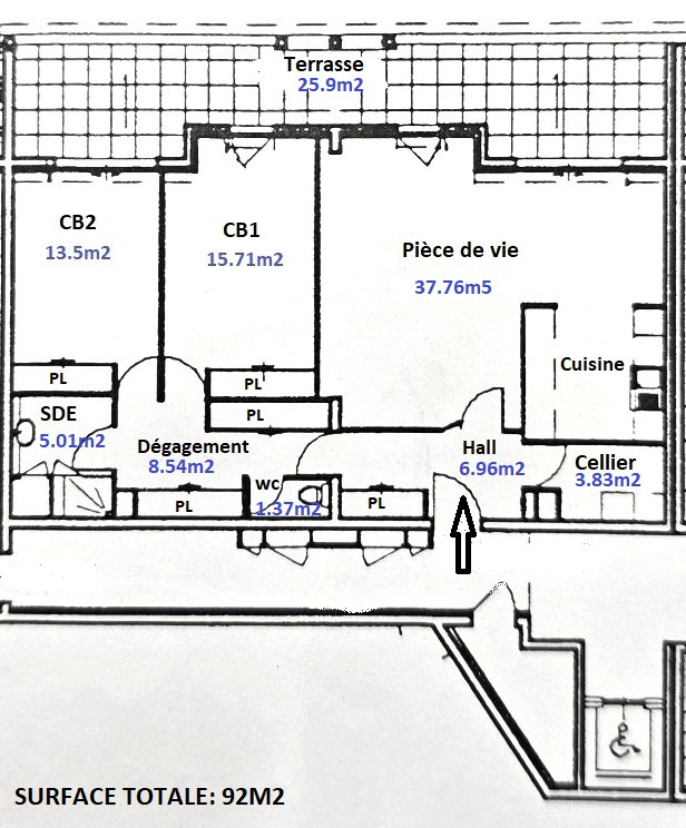
L'appartement est composé, d'une entrée, d'une grande pièce de vie avec une cuisine semi-séparée entièrement équipée ouverte sur un belle Terrasse/Loggia de 25.9m2, d'un cellier, de deux grandes chambres, d'une spacieuse salle d'eau et d'un WC indépendant.

Le bien dispose de nombreux placards très bien aménagés.

L'appartement est entièrement équipé de climatisation réversible, menuiseries double vitrage avec volets roulants électriques.

Par le croquis evec les surfaces et la visite guidée joints à cette annonce vous pourrez vous projeter dans ce bel et rare appartement.

La résidence très bien située et très bien habité a été constuite année 2002, elle très bien entretenue.

Les charges de copropriété sont d'environ 155 Euros/mois incluant l'eau, l'ascenseur, et l'entretien de la copropriété. La taxe foncière est de 1656 Euros dont 260 Euros de TOM.

DPE: C - A

Bouquet: 105000 Euros

Rente viagère mensuelle: 507 Euros / mensuel

Investissement Patrimonial !!!

Bilan énergétique

Diagnostics énergetiques
A propos de ce bien Caractéristiques de ce bien
  • Surface 92 m²
  • carrez 92 m²
  • séjour 32 m²
  • 2 chambre(s)
  • 1 salle(s) d'eau
  • construit en 2002
  • Chauffage individuel : air pulsé (climatisation)
  • 1 garage(s)
  • exposition Est
  • 1 niveau(x)
  • 3ème étage
  • 3 étage(s)
  • ascenseur
  • vue Dégagée ville
  • terrasse
  • quartier ARENES
  • accès handicapé

Composition

Composition de ce bien

Rez-de-chaussée

  • pièce à vivre 37.76 m²
  • Terrasse + Loggia 25.9 m²
  • chambre 15.71 m²
  • chambre 13.5 m²
  • salle d'eau 5.01 m²
  • cellier 3.83 m²

Info copro

Copropriété
  • Copropriété Oui
  • Lot n° 54 + 19
  • Nombre de lots 2
  • Quote part annuelle des charges 1 862 €

Financier

Informations financières
Prix de vente honoraires TTC inclus 105 000 €
Prix net vendeur 87 500 €
Prix de vente honoraires TTC exclus 87 500 €
Honoraires TTC à la charge acquéreur 20 %
Charges 155 €
Taxe foncière annuelle 1 656 €

Autour du bien

Découvrez le quartier

Simulation

Calcul des mensualités
* Champs obligatoires
Frédéric FLOUTIER Négociateur