Page suivante
Page précédente
Nîmes (30000)

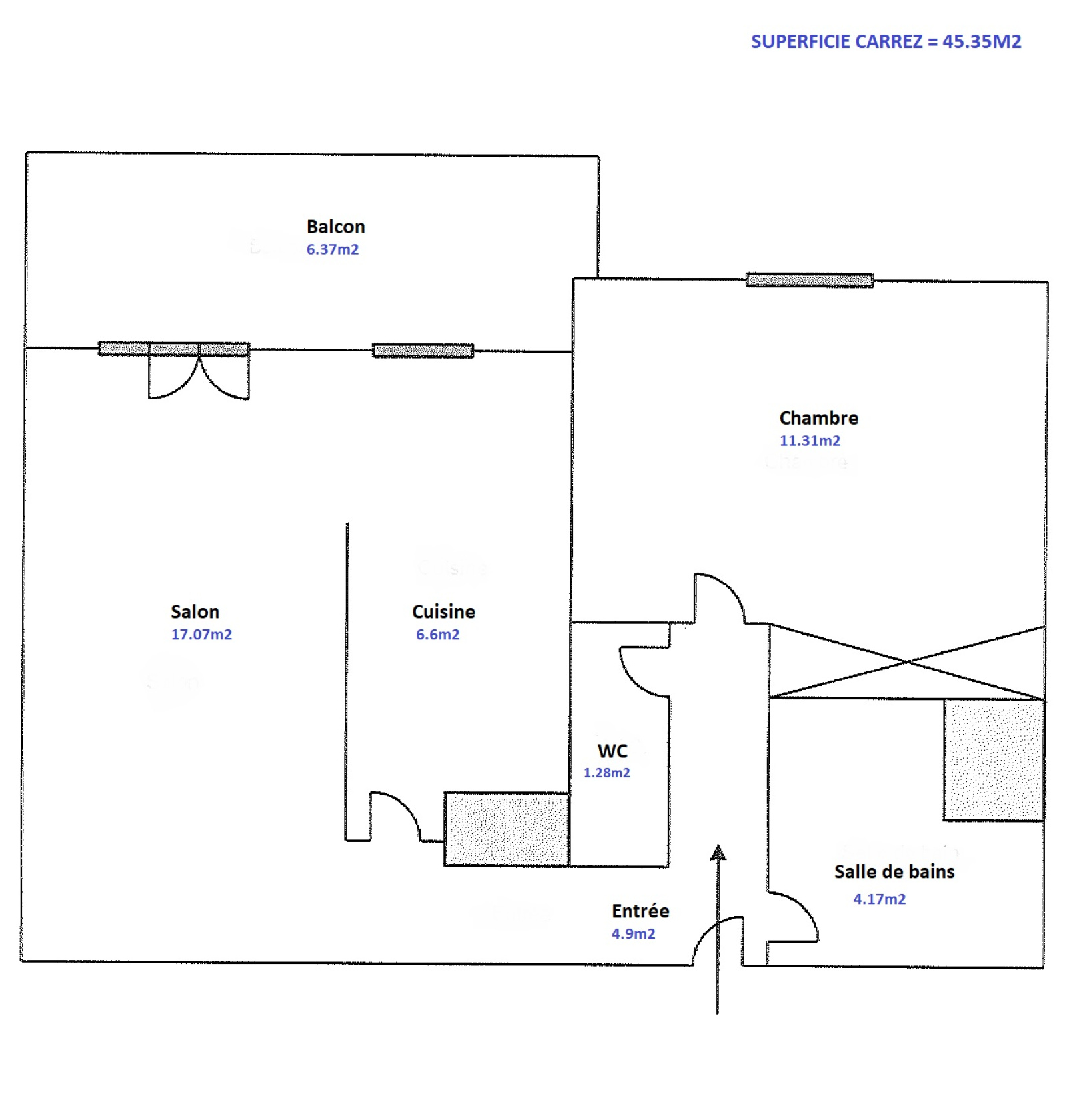
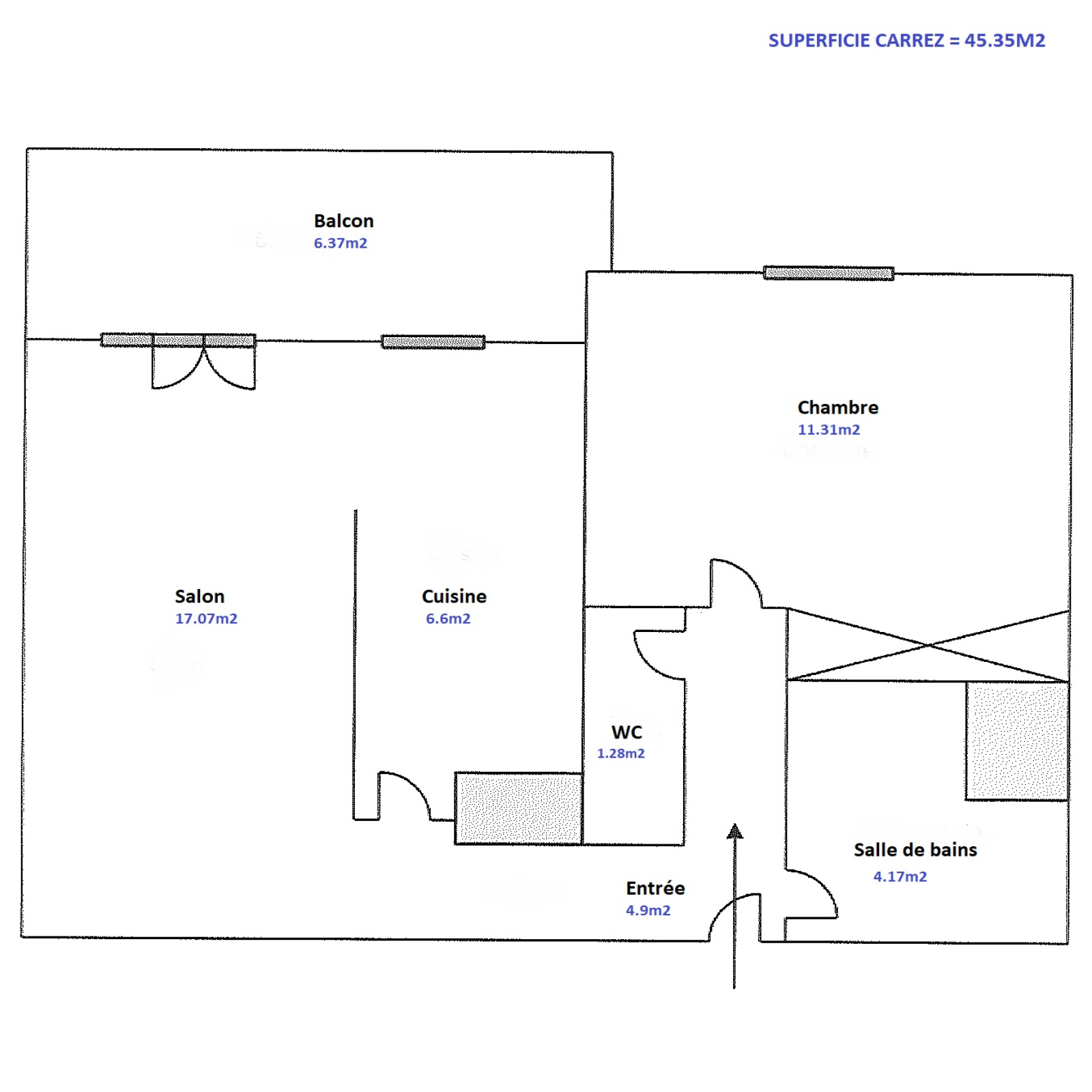
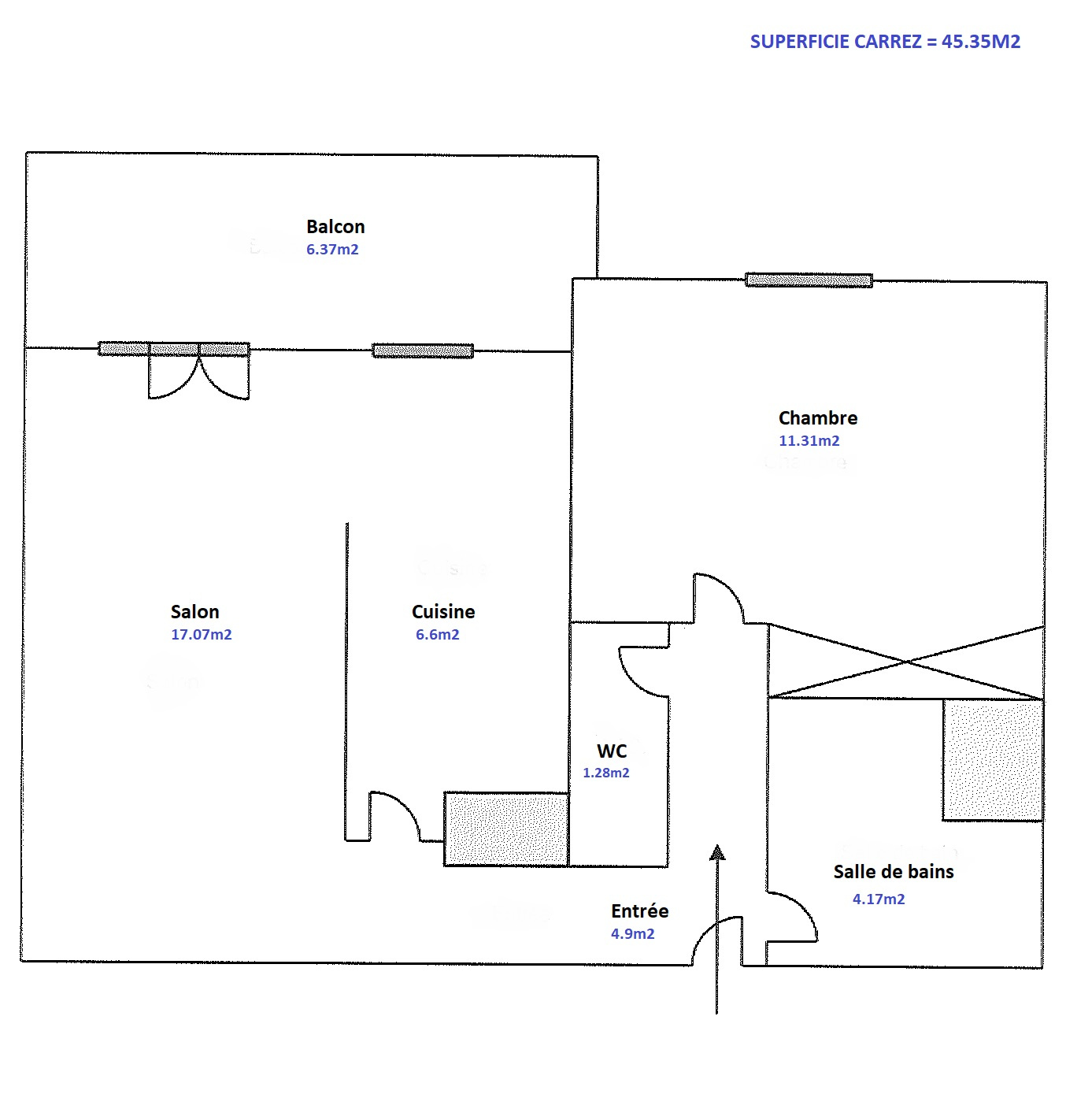
Appartement 2 pièce(s) 1 chambre(s) 45.35 m²

1
Balcon
Réf 2626

A seulementune minute des Jardins de la Fontaine et des Allées Jean Jaurès, dans une petite copropriété (11 logements), au 1er étage, appartement de 45 m², exposé plein sud. Hall d'entrée, séjour/salon ouvrant sur balcon, cuisine équipée semi ouverte, une chambre, salle de bains, wc indépendant.

Les menuiseries sont en pvc double vitrage. La pièce de vie est équipée d'une climatisation

La Taxe foncière est de 969 €

Les charges annuelles de copropriété sont pour l'année 2023 de 850 euros (eau incluse). Aucun travaux prévus

Annonce complète à découvrir sur https://www.acoteimmo.com

Bilan énergétique

Diagnostics énergetiques
A propos de ce bien Caractéristiques de ce bien
  • Surface 45,35 m²
  • carrez 45,35 m²
  • séjour 17 m²
  • 1 chambre(s)
  • 1 salle(s) de bain
  • construit en 1976
  • cuisine américaine (équipée)
  • Chauffage individuel : convecteur (electrique)
  • exposition Sud
  • 1 niveau(x)
  • 1er étage
  • 3 étage(s)
  • balcon
  • quartier Jardin de la Fontaine

Info copro

Copropriété
  • Copropriété Oui
  • Lot n° 2
  • Nombre de lots 11
  • Quote part annuelle des charges 850 €
  • Plan de sauvegarde Non
  • Statut du syndic Pas de procédure en cours

Financier

Informations financières
Prix net vendeur 120 000 €
Charges 71 €
Taxe foncière annuelle 969 €

Autour du bien

Découvrez le quartier

Simulation

Calcul des mensualités
* Champs obligatoires
NICOLE MORA Négociatrice