Page suivante
Page précédente
Nîmes (30000)

Appartement 3 pièce(s) 2 chambre(s) 68.33 m²

1
Ascenseur
1
Réf 2608

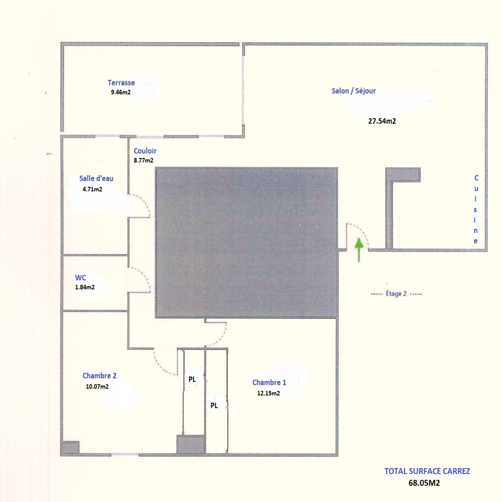
Votre agence A Coté Immobilier vous propose à la vente cet appartement 3 pièces de 68.05 m² loi Carrez, avec une grande terrasse ainsi qu'une place de stationnement privative.

Le bien est situé secteur DHUODA, à proximité du boulevard Jean-Jaurès, à 13mn à pied des Arènes, au 2ème étage avec ascenseur d'un immeuble construit en 2012 très bien entretenu.

L'appartement est bien agencé, il est composé d'une belle pièce de vie de salon-séjour/cuisine en L aménagée et équipée, donnant accès à une belle terrasse, deux chambres, d'une grande salle d'eau et d'un WC indépendant.

Par le croquis avec les surfaces joints avec l'annonce aisi que la visite virtuelle vous pourrez vous projeter dans ce bel appartement récent et très bien situé.

Climatisation réversible.

DPE B - B

La taxe foncière du bien est de 1198 Euros dont 206 Euros de TOM.

Les charges annuelles sont de 1403 Euros incluant l'entretien de la copropriété.

Les informations sur les risques auxquels ce bien est exposé sont disponibles sur le site Géorisques : www.georisques.gouv.fr

Annonce complète à découvrir sur https://www.acoteimmo.com


Les informations sur les risques auxquels ce bien est exposé sont disponibles sur le site Géorisques

Bilan énergétique

Diagnostics énergetiques
A propos de ce bien Caractéristiques de ce bien
  • Surface 68,33 m²
  • carrez 68,05 m²
  • séjour 27 m²
  • 2 chambre(s)
  • 1 salle(s) d'eau
  • construit en 2012
  • cuisine américaine (équipée)
  • exposition Est-Ouest
  • 2ème étage
  • 3 étage(s)
  • ascenseur
  • terrasse
  • quartier Duhoda
  • accès handicapé

Info copro

Copropriété
  • Copropriété Oui
  • Lot n° 30 / 3
  • Quote part annuelle des charges 1 403 €
  • Plan de sauvegarde Non
  • Statut du syndic Pas de procédure en cours

Financier

Informations financières
Prix net vendeur 160 000 €
Taxe foncière annuelle 1 198 €

Autour du bien

Découvrez le quartier

Simulation

Calcul des mensualités
* Champs obligatoires
Frédéric FLOUTIER Négociateur