Page suivante
Page précédente
Nîmes (30000)

Appartement 2 pièce(s) 1 chambre(s) 47.59 m²

1
Ascenseur
1
Réf 2601

Investissement Patrimonial !!! Votre agence A Coté Immobilier a le privilège de vous proposer à l'achat cet appartement Type 2 de 47m2, avec terrasse, garage et cave, situé dans la résidence très recherché des "Jardins de l'Esplanade", à quelques mètres des Arènes, de l'Esplanade, et du Musée de la Romanité.

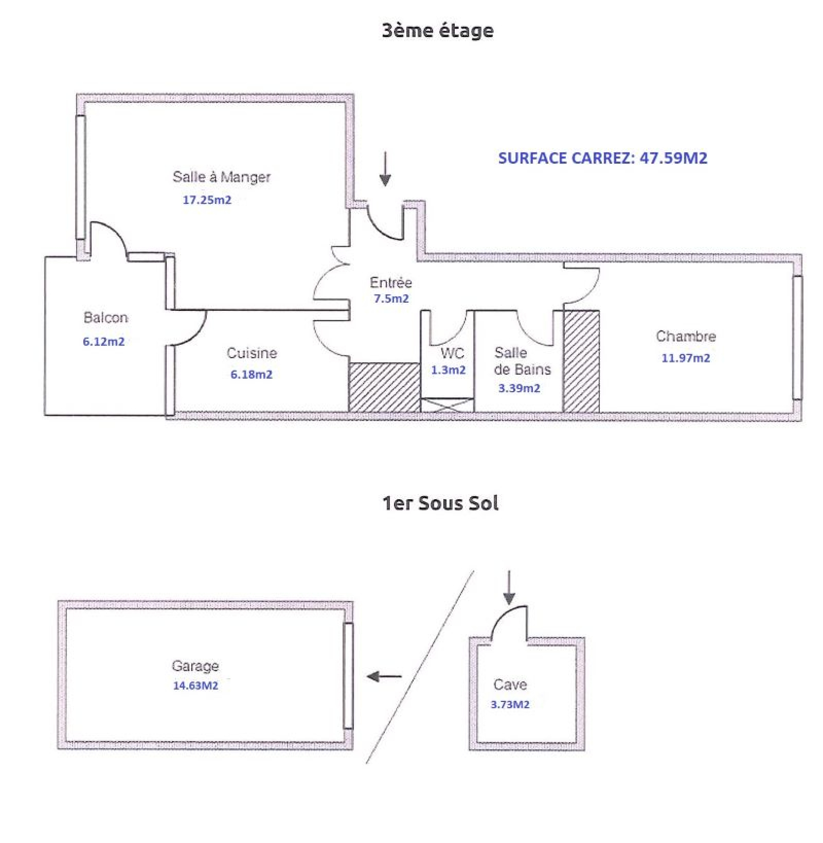
L'appartement situé au 3ième étage avec ascenseur est composé: D'une entré avec placard, d'un séjour ouvert sur une terrasse, d'une cuisine indépendante également ouverte sur la terrasse, d'une grande chambre, d'une salle de bains et d'un WC. La vue de l'appartement est agréable et dégagée sur le parc de la résidence.

Les menuiseries sont en double vitrage, les charges de coproriété sont d'environ 115 euros par mois incluant l'eau, le chauffage, l'ascenseur, l'entretien de la copropriété, le gardien...

Un beau garage de ainsi qu'une cave, en sous-sol, sont aussi vendus avec l'appartement.

La taxe foncière est de 1353 Euros dont 232 Euros de TOM.

L'appartement est vendu loué 640 Euros CC avec une locataire très sèrieuse en place depuis 10 ans avec un bail du 02/12/2013.

Les charges mensuelle sont d'environ 115 Euros/mois, incluant: L'eau, une part du chauffage, l'entretien de la copropriété, l'ascenseur...Dont 75 Euros à la charge du locataire.

La résidence construite année 1980 est très bien entretenue, elle bénéficie d'un beau parc intèrieur ce qui est très rare en plein centre ville, elle est sécurisée et bénéficie d'un gardien

N'hésitez pas à venir découvrir cet appartement vous garantissant par son emplacement, un investissemnent de qualité.

DPE: D - B

Bilan énergétique

Diagnostics énergetiques
A propos de ce bien Caractéristiques de ce bien
  • Surface 47,59 m²
  • carrez 47,59 m²
  • 1 chambre(s)
  • 1 salle(s) de bain
  • construit en 1980
  • cuisine séparée
  • 1 garage(s)
  • exposition Est-Ouest
  • 1 niveau(x)
  • 3ème étage
  • 4 étage(s)
  • ascenseur
  • vue Dégagée sur jardin
  • cave
  • terrasse
  • quartier ARENES

Composition

Composition de ce bien

Rez-de-chaussée

  • salon/sejour 17.25 m²
  • cuisine 6.18 m²
  • chambre 11.97 m²

Info copro

Copropriété
  • Copropriété Oui
  • Lot n° 284
  • Nombre de lots 3
  • Quote part annuelle des charges 1 360 €

Financier

Informations financières
Prix net vendeur 140 000 €
Charges 115 €
Taxe foncière annuelle 1 353 €

Autour du bien

Découvrez le quartier

Simulation

Calcul des mensualités
* Champs obligatoires
Frédéric FLOUTIER Négociateur