Page suivante
Page précédente
Nîmes (30000)

Appartement 3 pièce(s) 2 chambre(s) 74.05 m²

1
Balcon
Réf 2544

Coup de Coeur assuré !!! Votre agence A Coté Immobilier vous propose en exclusivité ce superbe appartement Type 3 d'environ 75m2 entièrement rénové avec gout et matèriaux de qualité, situé au 3ième et dernier étage d'une résidence construite année 2000, à seulement 7mn à pieds des Arènes et de la gare de Nimes, sur un excellent secteur bénéficiant de tous les commerces et des écoles publiques et privées.

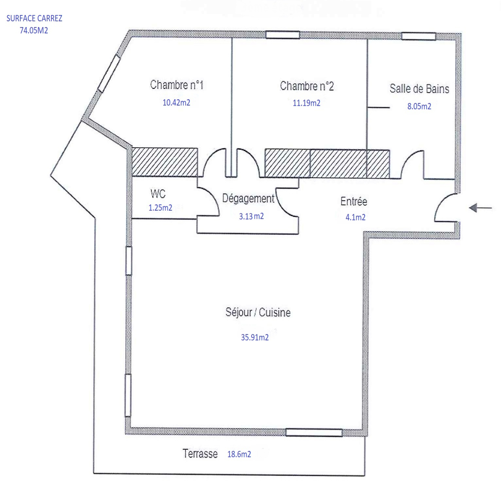
L'appartement est composé, d'une entrée avec placards, d'une magnifique pièce de vie d'environ 36m2 avec espace salon, salle manger et une cuisine fonctionnelle entièrement aménagée et équipée, de 2 chambres avec placards, d'une grande et belle salle d'eau avec douche, double vasque et un espace buanderie, et d'un WC indépendant.

La pièce de vie dispose de 2 ouvertures sur une grande loggia de 18m2 avec un espace rangement et étendoir.

L'appartement est traversant Sud/Nord, il dispose d'une vue agréable et dégagée.

Les menuiseries sont en double vitrage avec volets roulants, le chauffage est central gaz par une chaudière neuve, et la pièce de vie est climatisée par une climatisation réversible neuve également.

Les diagnostics techniques sont excellents !!!

Aucun soucis pour le stationnement, un grand emplacement de parking qui peut-être transformé en garage est aussi vendu avec l'appartement.

Les charges sont d'environ 100 Euros/mois, incluant l'eau et l'entretien de la copropriété. la taxe foncière de 1321 Euros.

Par le plan joint avec l'annonce vous pourrez vous projeter dans ce bel appartement. qui dispose de beaucoup d'atouts.

Appartement coup de coeur ou il ne reste plus qu'a poser les valises, n'hésitez pas à venir le découvrir, il ne sera pas disponible très longtemps...

Bilan énergétique

Diagnostics énergetiques
A propos de ce bien Caractéristiques de ce bien
  • Surface 74,05 m²
  • carrez 74,05 m²
  • séjour 36 m²
  • 2 chambre(s)
  • 1 salle(s) d'eau
  • construit en 2000
  • Chauffage individuel : radiateur (gaz)
  • exposition Nord-Sud
  • 1 niveau(x)
  • 3ème étage
  • 3 étage(s)
  • vue Dégagée ville
  • balcon
  • interphone
  • quartier Marronnier

Composition

Composition de ce bien

Rez-de-chaussée

  • salon/sejour 35.91 m²
  • chambre 11.19 m²
  • chambre 10.42 m²
  • salle d'eau 8.05 m²
  • entrée 4.1 m²
  • degagement 3.13 m²
  • WC 1.25 m²

Info copro

Copropriété
  • Copropriété Oui
  • Lot n° 11
  • Nombre de lots 69
  • Quote part annuelle des charges 1 200 €

Financier

Informations financières
Charges 100 €
Taxe foncière annuelle 1 321 €

Autour du bien

Découvrez le quartier

Simulation

Calcul des mensualités
* Champs obligatoires
Frédéric FLOUTIER Négociateur