Page suivante
Page précédente
Nîmes (30000)

Appartement 3 pièce(s) 2 chambre(s) 77 m²

1
1
Réf 2517

Idéalement situé, entre l'avenue Carnot et l'avenue Feuchères, proche des Jardins de l'Esplanade !!! Votre agence A Coté Immobilier vous propose à l'achat ce bel appartement Type 3/4 situé au 2ième et dernier étage d'un étage d'un bel immeuble ancien très bien entretenue.

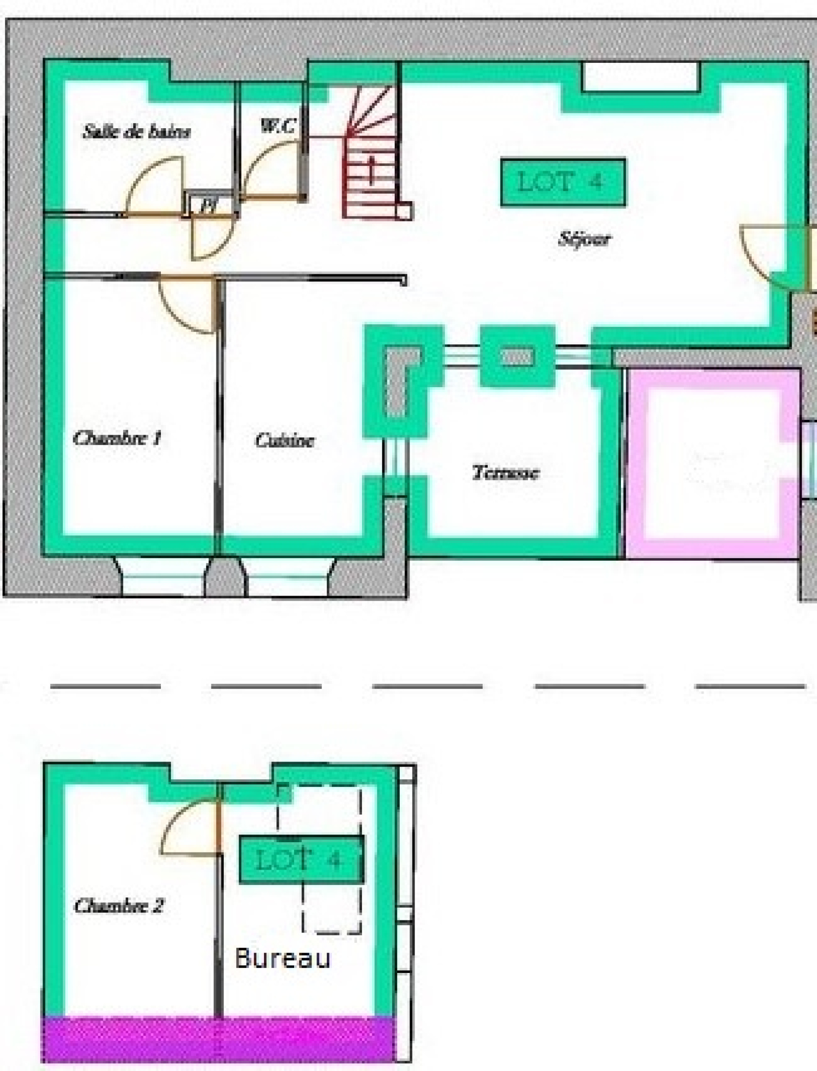
L'appartement duplex est composé: Au RDC: d'une belle pièce à vivre ouverte sur la terrasse, d'une cuisine entièrement aménagée et équipée également ouverte sur la terrasse, d'une spacieuse salle d'eau et d'un WC indépendant. La partie duplex est composé d'un espace bureau et d'une chambre indépendante éclairée par vélux. Par le plan joint à cette annonce vous pourrez vous projeter au sein de cet appartemenet.

Les menuiseries sont en double vitrage, le chauffage est central gaz et le séjour bénéficie d'un climatisation réversible.

L'appartement a été complètement rénové il y a une dizaine d'année, l'électricité est aux normes.

Auncun soucis pour le stationnement un emplacement de parking est aussi vendu avec l'appartement, ainsi qu'une cave pour le rangement.

Suite a une mise en copropriété, la taxe foncière du bien n'est pas encore définie. Faibles charges de copropriété.

N'hésitez pas a vous informer sur cet appartement duplex idéalement situé.

Bilan énergétique

Diagnostics énergetiques
A propos de ce bien Caractéristiques de ce bien
  • Surface 77 m²
  • carrez 75 m²
  • 2 chambre(s)
  • 1 salle(s) d'eau
  • construit en 1900
  • cuisine séparée (équipée)
  • Chauffage central : radiateur (gaz)
  • exposition Est
  • 2 niveau(x)
  • 2ème étage
  • 2 étage(s)
  • vue Dégagée
  • terrasse
  • quartier FEUCHERES

Info copro

Copropriété
  • Copropriété Oui
  • Lot n° 4

Financier

Informations financières
Prix net vendeur 230 000 €

Autour du bien

Découvrez le quartier

Simulation

Calcul des mensualités
* Champs obligatoires
NICOLE MORA Négociatrice