Page suivante
Page précédente
Nîmes (30000)

Appartement 3 pièce(s) 2 chambre(s) 64 m²

1
Balcon
Ascenseur
Réf 2395

Votre agence A Coté Immobilier vous propose à la vente ce bel appartement Type 3/4 de 64m2 situé secteur Marronniers, dans une copropriété sécurisée profitant du calme d'une impasse, à seulement 15 mn à pieds des Arènes et des jardins de l'Esplanade.

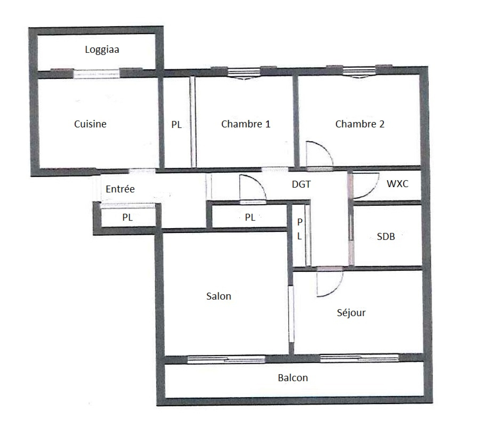
L'appartement est en très bon état, il est composé d'une entrée avec placard, d'une grande cuisine ouverte sur une loggia fermée très pratique, d'une salle à manger/Salon d'environ 24m2 ouverte sur un grand balcon, 2 chambres, un WC indépendant et une salle de bains.

Les menuiseries du bien sont toutes en double vitrage, le chauffage est central collectif par répartiteur ce qui permet de gérer sa consommation et une climatisation réversible vous agrémentera la pièce à vivre lors de la saison la plus chaude.

Les charges de copropriété sont d'environ 160 Euros par mois incluant le chauffage et l'eau froide, l'entretien des communs du parc et de l'ascenseur. La taxe foncière est de 1039 Euros.

Le bien est exposé Est/Ouest, il est traversant et très ensoleillé.

Pour le rangemant l'appartement dispose de nombreux placards, de la loggia, et d'une cave en sous-sol. Un emplacement de parking privé est aussi vendu avec l'appartement.

Excellent rapport qualité-prix !!! Cet appartement est habitable immédiatement.

Bilan énergétique

Diagnostics énergetiques
A propos de ce bien Caractéristiques de ce bien
  • Surface 64 m²
  • carrez 64 m²
  • séjour 24 m²
  • 2 chambre(s)
  • 1 salle(s) de bain
  • construit en 1965
  • cuisine séparée (semi-équipée)
  • Chauffage collectif : radiateur (autre)
  • 1 parking(s)
  • exposition Est-Ouest
  • 1 niveau(x)
  • 1er étage
  • 9 étage(s)
  • ascenseur
  • vue Jardin
  • cave
  • balcon
  • quartier Marronier

Composition

Composition de ce bien

Rez-de-chaussée

  • cuisine 9.19 m²
  • salon/sejour 25 m²
  • chambre 9.45 m²
  • chambre 9.24 m²
  • salle de bain 2.3 m²
  • WC 1.41 m²
  • balcon 5 m²
  • loggia 3.22 m²

Info copro

Copropriété
  • Copropriété Oui
  • Lot n° 36
  • Quote part annuelle des charges 1 870 €

Financier

Informations financières
Charges 160 €
Taxe foncière annuelle 1 039 €

Autour du bien

Découvrez le quartier

Simulation

Calcul des mensualités
* Champs obligatoires
Frédéric FLOUTIER Négociateur