Page suivante
Page précédente
Nîmes (30000)

Appartement 2 pièce(s) 1 chambre(s) 39 m²

1
Balcon
Ascenseur
Réf 02197

Idèal investisseur ou 1er achat !!! Secteur  triangle, place Montcalm, Préfecture, Sergent Triaire,votre agence A Coté Immobilier vous propose cet appartement type 2 situé  dans une résidence de très bon standing construite en 2005. 

L'appartement est situé au 3ième étage avec ascenseur. Il est composé d'un Hall avec placards, d'une cuisine US, d'une belle pièce a vivre ouverte sur une spacieuse  terrasse couverte et d'un balcon dont vous disposerez d'une vue dominante et dégagée sur la ville, d'une chambre avec placards, d'une salle de bains et d'un WC indépendant.

Cet appartement dispose d'une excellent situation, a 10 mn a pieds des arènes, proche commerces et établissements scolaires.

Aucun problème pour stationner, un emplacement de parking situé dans le garage fermé de la résidence est vendu avec l'appartement.

La résidence répond aux normes handicapés.

Les charges annuelles de copropriété sont de 760€ eau incluse, et la taxe foncière de 866€ dont la part ordures ménagères de 134€ à la charge du locataire dans le cas ou votre achat serait a but locatif.

N'attendez pas pour visiter cet appartement, ce type de bien est très recherché

Bilan énergétique

Diagnostics énergetiques
A propos de ce bien Caractéristiques de ce bien
  • Surface 39 m²
  • carrez 38,70 m²
  • séjour 19,40 m²
  • 1 chambre(s)
  • 1 salle(s) de bain
  • construit en 2005
  • cuisine américaine (équipée)
  • Chauffage individuel : radiateur (electrique)
  • exposition Sud-Ouest
  • 1 niveau(x)
  • 3ème étage
  • 4 étage(s)
  • ascenseur
  • vue Dégagée - Dominante
  • balcon
  • terrasse
  • interphone
  • quartier MONTCALM, Prefecture
  • accès handicapé

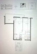
Composition

Composition de ce bien

Rez-de-chaussée

  • Hall d'entrée 3.1 m²
  • pièce à vivre 19.4 m²
  • terrasse 11.5 m²
  • chambre 11.7 m²
  • salle de bain 2.6 m²
  • WC 1.1 m²

Financier

Informations financières
Charges 63 €
Taxe foncière annuelle 866 €

Autour du bien

Découvrez le quartier

Simulation

Calcul des mensualités
* Champs obligatoires
Frédéric FLOUTIER Négociateur